ОКРЕСТНОСТИ ПЕТЕРБУРГАПутеводители Карты Краеведение Военная история Фотогалерея    Старый сайт
Начало » Санкт-Петербург » Северные районы СПб » Ж/д ветка на Гражданке+упразднённые улицы
Re: Стандарт [сообщение #76659 является ответом на сообщение #76656] вс, 31 мая 2009 05:20 Переход к предыдущему сообщенияПереход к предыдущему сообщения
raevsku
passerby писал(а) 31 мая 2009 03:37


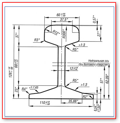
1. Просто монстр какой-то! На нормальных ЖД судя по таблице приведенной раньше и то меньше- 92 мм (-1 "узкоколейке").

Ниже привожу рисунок с геометрическими размерами - "Рельс узкой колеи Р33". Ширина подошвы - 110 мм. Похоже, это те рельсы, которые я обнаружил сегодня (уже вчера).

  • Вложение: rels_R-33.png
    (Размер: 56.63KB, Загружено 4577 раз)
 
Сообщение не прочитано
Сообщение не прочитано
Сообщение не прочитано
Сообщение не прочитано
Сообщение не прочитано
Сообщение не прочитано
Сообщение не прочитано
Сообщение не прочитано
Сообщение не прочитано
Сообщение не прочитано
Сообщение не прочитано
Сообщение не прочитано
Сообщение не прочитано
Сообщение не прочитано
Сообщение не прочитано
Сообщение не прочитано
Сообщение не прочитано
Сообщение не прочитано
Сообщение не прочитано
Сообщение не прочитано
Сообщение не прочитано
Сообщение не прочитано
Сообщение не прочитано
Сообщение не прочитано
Сообщение не прочитано
Сообщение не прочитано
Сообщение не прочитано
Сообщение не прочитано
Сообщение не прочитано
Сообщение не прочитано
Сообщение не прочитано
Сообщение не прочитано
Сообщение не прочитано
Сообщение не прочитано
Сообщение не прочитано
Сообщение не прочитано
Сообщение не прочитано
Сообщение не прочитано
Сообщение не прочитано
Сообщение не прочитано
Сообщение не прочитано
Сообщение не прочитано
Сообщение не прочитано
Сообщение не прочитано
Сообщение не прочитано
Сообщение не прочитано
Сообщение не прочитано
Сообщение не прочитано
Сообщение не прочитано
Сообщение не прочитано
Сообщение не прочитано
Сообщение не прочитано
Сообщение не прочитано
Сообщение не прочитано
Сообщение не прочитано
Сообщение не прочитано
Сообщение не прочитано
Сообщение не прочитано
Сообщение не прочитано
Сообщение не прочитано
Сообщение не прочитано
Сообщение не прочитано
Сообщение не прочитано
Сообщение не прочитано
Сообщение не прочитано
Сообщение не прочитано
Сообщение не прочитано
Сообщение не прочитано
Сообщение не прочитано
Сообщение не прочитано
Сообщение не прочитано
Сообщение не прочитано
Сообщение не прочитано
Сообщение не прочитано
Сообщение не прочитано
Сообщение не прочитано
Сообщение не прочитано
Сообщение не прочитано
Сообщение не прочитано
Сообщение не прочитано
Сообщение не прочитано
Сообщение не прочитано
Сообщение не прочитано
Сообщение не прочитано
Сообщение не прочитано
Сообщение не прочитано
Сообщение не прочитано
Сообщение не прочитано
Сообщение не прочитано
Сообщение не прочитано
Сообщение не прочитано
Сообщение не прочитано
Сообщение не прочитано
Сообщение не прочитано
Сообщение не прочитано
Сообщение не прочитано
Сообщение не прочитано
Сообщение не прочитано
Сообщение не прочитано
Сообщение не прочитано
Сообщение не прочитано
Сообщение не прочитано
Сообщение не прочитано
Сообщение не прочитано
Сообщение не прочитано
Сообщение не прочитано
Сообщение не прочитано
Сообщение не прочитано
Сообщение не прочитано
Сообщение не прочитано
Сообщение не прочитано
Сообщение не прочитано
Сообщение не прочитано
Сообщение не прочитано
Сообщение не прочитано
Сообщение не прочитано
Сообщение не прочитано
Сообщение не прочитано
Сообщение не прочитано
Сообщение не прочитано
Сообщение не прочитано
Сообщение не прочитано
Сообщение не прочитано
Сообщение не прочитано
Сообщение не прочитано
Сообщение не прочитано
Сообщение не прочитано
Сообщение не прочитано
Сообщение не прочитано
Сообщение не прочитано
Сообщение не прочитано
Сообщение не прочитано
Сообщение не прочитано
Сообщение не прочитано
Сообщение не прочитано
Сообщение не прочитано
Сообщение не прочитано
Сообщение не прочитано
Сообщение не прочитано
Сообщение не прочитано
Сообщение не прочитано
Сообщение не прочитано
Сообщение не прочитано
Сообщение не прочитано
Сообщение не прочитано
Сообщение не прочитано
Сообщение не прочитано
Сообщение не прочитано
Сообщение не прочитано
Сообщение не прочитано
Сообщение не прочитано
Сообщение не прочитано
Сообщение не прочитано
Сообщение не прочитано
Сообщение не прочитано
Сообщение не прочитано
Сообщение не прочитано
Сообщение не прочитано
Сообщение не прочитано
Сообщение не прочитано
Сообщение не прочитано
Сообщение не прочитано
Сообщение не прочитано
Сообщение не прочитано
Сообщение не прочитано
Сообщение не прочитано
Сообщение не прочитано
Сообщение не прочитано
Сообщение не прочитано
Сообщение не прочитано
Сообщение не прочитано
Сообщение не прочитано
Сообщение не прочитано
Сообщение не прочитано
Сообщение не прочитано
Сообщение не прочитано
Сообщение не прочитано
Сообщение не прочитано
Сообщение не прочитано
Сообщение не прочитано
Сообщение не прочитано
Сообщение не прочитано
Сообщение не прочитано
Сообщение не прочитано
Сообщение не прочитано
Сообщение не прочитано
Сообщение не прочитано
Сообщение не прочитано
Сообщение не прочитано
Сообщение не прочитано
Сообщение не прочитано
Сообщение не прочитано
Сообщение не прочитано
Сообщение не прочитано
Сообщение не прочитано
Сообщение не прочитано
Сообщение не прочитано
Сообщение не прочитано
Сообщение не прочитано
Сообщение не прочитано
Сообщение не прочитано
Сообщение не прочитано
Сообщение не прочитано
Сообщение не прочитано
Сообщение не прочитано
Сообщение не прочитано
Сообщение не прочитано
Сообщение не прочитано
Сообщение не прочитано
Сообщение не прочитано
Сообщение не прочитано
Сообщение не прочитано
Сообщение не прочитано
Сообщение не прочитано
Сообщение не прочитано
Сообщение не прочитано
Сообщение не прочитано
Сообщение не прочитано
Сообщение не прочитано
Сообщение не прочитано
Сообщение не прочитано
Сообщение не прочитано
Сообщение не прочитано
Сообщение не прочитано
Сообщение не прочитано
Сообщение не прочитано
Сообщение не прочитано
Сообщение не прочитано
Сообщение не прочитано
Сообщение не прочитано
Сообщение не прочитано
Сообщение не прочитано
Сообщение не прочитано
Сообщение не прочитано
Сообщение не прочитано
Сообщение не прочитано
Сообщение не прочитано
Сообщение не прочитано
Сообщение не прочитано
Сообщение не прочитано
Сообщение не прочитано
Сообщение не прочитано
Сообщение не прочитано
Сообщение не прочитано
Сообщение не прочитано
Сообщение не прочитано
Сообщение не прочитано
Сообщение не прочитано
Сообщение не прочитано
Сообщение не прочитано
Сообщение не прочитано
Сообщение не прочитано
Сообщение не прочитано
Сообщение не прочитано
Сообщение не прочитано
Сообщение не прочитано
Сообщение не прочитано
Сообщение не прочитано
Сообщение не прочитано
Сообщение не прочитано
Сообщение не прочитано
Сообщение не прочитано
Сообщение не прочитано
Сообщение не прочитано
Сообщение не прочитано
Сообщение не прочитано
Сообщение не прочитано
Сообщение не прочитано
Сообщение не прочитано
Сообщение не прочитано
Сообщение не прочитано
Сообщение не прочитано
Сообщение не прочитано
Сообщение не прочитано
Сообщение не прочитано
Сообщение не прочитано
Сообщение не прочитано
Сообщение не прочитано
Сообщение не прочитано
Сообщение не прочитано
Сообщение не прочитано
Сообщение не прочитано
Сообщение не прочитано
Сообщение не прочитано
Сообщение не прочитано
Сообщение не прочитано
Сообщение не прочитано
Сообщение не прочитано
Сообщение не прочитано
Сообщение не прочитано
Сообщение не прочитано
Сообщение не прочитано
Сообщение не прочитано
Сообщение не прочитано
Сообщение не прочитано
Сообщение не прочитано
Сообщение не прочитано
Сообщение не прочитано
Сообщение не прочитано
Сообщение не прочитано
Сообщение не прочитано
Сообщение не прочитано
Сообщение не прочитано
Сообщение не прочитано
Сообщение не прочитано
Сообщение не прочитано
Сообщение не прочитано
Сообщение не прочитано
Сообщение не прочитано
Сообщение не прочитано
Сообщение не прочитано
Сообщение не прочитано
Сообщение не прочитано
Сообщение не прочитано
Сообщение не прочитано
Сообщение не прочитано
Сообщение не прочитано
Сообщение не прочитано
Сообщение не прочитано
Сообщение не прочитано
Сообщение не прочитано
Сообщение не прочитано
Сообщение не прочитано
Сообщение не прочитано
Сообщение не прочитано
Сообщение не прочитано
Сообщение не прочитано
Сообщение не прочитано
Сообщение не прочитано
Сообщение не прочитано
Сообщение не прочитано
Сообщение не прочитано
Сообщение не прочитано
Сообщение не прочитано
Сообщение не прочитано
Сообщение не прочитано
Сообщение не прочитано
Сообщение не прочитано
Сообщение не прочитано
Сообщение не прочитано
Сообщение не прочитано
Сообщение не прочитано
Сообщение не прочитано
Сообщение не прочитано
Сообщение не прочитано
Сообщение не прочитано
Сообщение не прочитано
Сообщение не прочитано
Сообщение не прочитано
Сообщение не прочитано
Сообщение не прочитано
Сообщение не прочитано
Сообщение не прочитано
Сообщение не прочитано
Сообщение не прочитано
Сообщение не прочитано
Сообщение не прочитано
Сообщение не прочитано
Сообщение не прочитано
Сообщение не прочитано
Сообщение не прочитано
Сообщение не прочитано
Сообщение не прочитано
Сообщение не прочитано
Сообщение не прочитано
Сообщение не прочитано
Сообщение не прочитано
Сообщение не прочитано
Сообщение не прочитано
Сообщение не прочитано
Сообщение не прочитано
Сообщение не прочитано
Сообщение не прочитано
Сообщение не прочитано
Сообщение не прочитано
Сообщение не прочитано
Сообщение не прочитано
Сообщение не прочитано
Сообщение не прочитано
Сообщение не прочитано
Сообщение не прочитано
Сообщение не прочитано
Сообщение не прочитано
Сообщение не прочитано
Сообщение не прочитано
Сообщение не прочитано
Сообщение не прочитано
Сообщение не прочитано
Сообщение не прочитано
Сообщение не прочитано
Сообщение не прочитано
Сообщение не прочитано
Сообщение не прочитано
Сообщение не прочитано
Сообщение не прочитано
Сообщение не прочитано
Сообщение не прочитано
Сообщение не прочитано
Сообщение не прочитано
Сообщение не прочитано
Сообщение не прочитано
Сообщение не прочитано
Сообщение не прочитано
Сообщение не прочитано
Сообщение не прочитано
Сообщение не прочитано
Сообщение не прочитано
Сообщение не прочитано
Сообщение не прочитано
Сообщение не прочитано
Сообщение не прочитано
Сообщение не прочитано
Сообщение не прочитано
Сообщение не прочитано
Сообщение не прочитано
Сообщение не прочитано
Сообщение не прочитано
Сообщение не прочитано
Сообщение не прочитано
Сообщение не прочитано
Сообщение не прочитано
Сообщение не прочитано
Сообщение не прочитано
Сообщение не прочитано
Сообщение не прочитано
Сообщение не прочитано
Сообщение не прочитано
Сообщение не прочитано
Сообщение не прочитано
Сообщение не прочитано
Сообщение не прочитано
Сообщение не прочитано
Сообщение не прочитано
Сообщение не прочитано
Сообщение не прочитано
Сообщение не прочитано
Сообщение не прочитано
Сообщение не прочитано
Сообщение не прочитано
Сообщение не прочитано
Сообщение не прочитано
Сообщение не прочитано
Сообщение не прочитано
Сообщение не прочитано
Сообщение не прочитано
Сообщение не прочитано
Сообщение не прочитано
Сообщение не прочитано
Сообщение не прочитано
Сообщение не прочитано
Сообщение не прочитано
Сообщение не прочитано
Сообщение не прочитано
Сообщение не прочитано
Сообщение не прочитано
Сообщение не прочитано
Сообщение не прочитано
Сообщение не прочитано
Сообщение не прочитано
Сообщение не прочитано
Сообщение не прочитано
Сообщение не прочитано
Сообщение не прочитано
Сообщение не прочитано
Сообщение не прочитано
Сообщение не прочитано
Сообщение не прочитано
Сообщение не прочитано
Сообщение не прочитано
Сообщение не прочитано
Сообщение не прочитано
Сообщение не прочитано
Сообщение не прочитано
Сообщение не прочитано
Сообщение не прочитано
Сообщение не прочитано
Сообщение не прочитано
Сообщение не прочитано
Сообщение не прочитано
Сообщение не прочитано
Сообщение не прочитано
Сообщение не прочитано
Сообщение не прочитано
Сообщение не прочитано
Сообщение не прочитано
Сообщение не прочитано
Сообщение не прочитано
Сообщение не прочитано
Сообщение не прочитано
Сообщение не прочитано
Сообщение не прочитано
Сообщение не прочитано
Сообщение не прочитано
Сообщение не прочитано
Сообщение не прочитано
Сообщение не прочитано
Сообщение не прочитано
Предыдущая тема: Застройка севера Васильевского острова
Следующая тема: Удельный парк
Переход к форуму:
  


Текущее время: сб дек #d 06:34:13 MSK 2024