| В фотогалерею добавлены планировки дотов КаУРа [сообщение #92938] |
вт, 23 февраля 2010 21:24  |
|
|
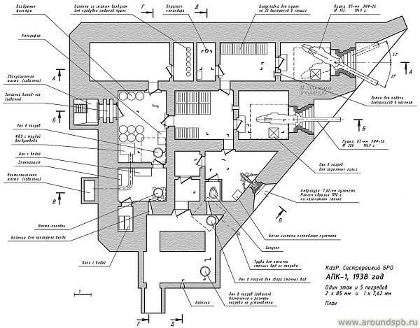
Карельский укрепрайон: Сестрорецкий, Белоостровский, Мертутский, Меднозаводский, Елизаветинский, Агалатовский, Лемболовский, Ненюмякский, Путкеловский, Соеловский районы.
Несколько лет Ю.Зинченко зарисовывал планировки во время полевых исследований. О.Тульнов работал в архиве, благодаря чему удалось свести практику с теорией. И вот, наконец, публикую промежуточный результат, 58 эскизов долговременных сооружений:
http://www.photo.aroundspb.ru/fortification/planning/

|
|
|
|